︎

Benjamin Bonnard

Info

BreadboardEDU

7R2HEDU

KurgiPERSO

BagninoEDU

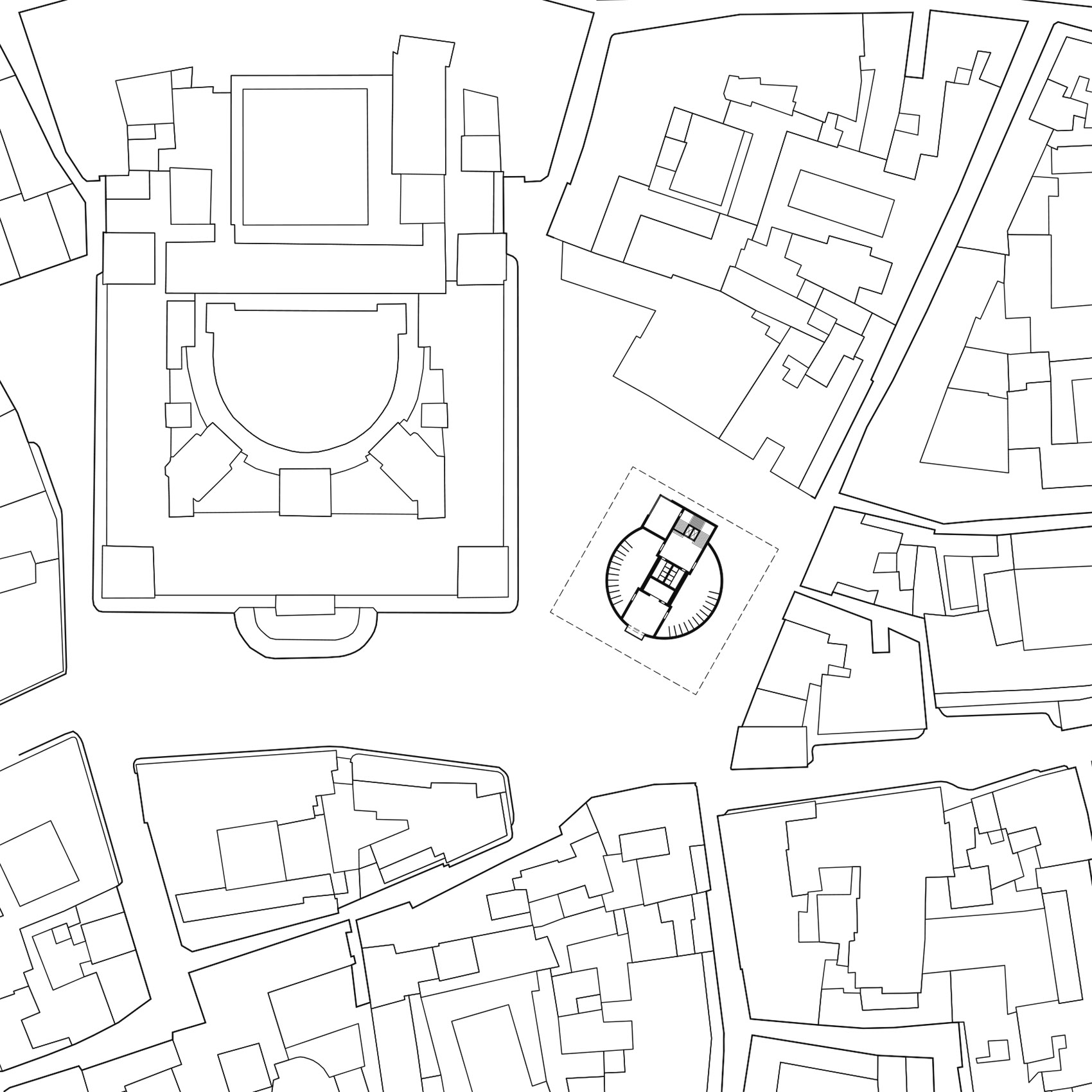
Sangallo’sEDU

Techno DrawingsPROF

ArtectureEDU

Graphic ContentMISC

EphemeralMISC

ObjectsMISC
Instagram
Archive